Casa en Venta 4 Dorm. Cochera y Jardin
- U$D 260.000
Descripción
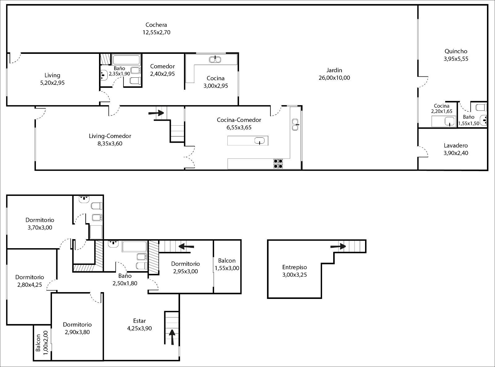
CASA EN VENTA DE 5 AMBIENTES CON COCHERAS
Sobre un lote de 10×48, se encuentra esta propiedad ubicada a pocas cuadras de la estación de Villa Adelina del tren Belgrano Norte, cercano a importante escuela y la plaza Manuel Belgrano,
Se desarrolla en 2 plantas con cochera para varios autos,
En Planta baja doble entrada, la principal a un living comedor de espacios cómodos con mas de 8mts, cocina moderna con barra para comedor barrio, buen espacio de mesada, doble pileta, lugar para lavarropas y lavavajillas y con mueble alto y bajo mesada.
Baño completo con bañera.
Al jardín se puede acceder desde la cochera y también desde la cocina, es muy amplio con posibilidades de piscina y parque, posee parrilla, quincho calefaccionado, con baño y cocina, y un ambiente independiente para guardado y lavadero.
La entrada secundaria nos da lugar a un amplio redicibor, hoy dividido para consultorio, con lo cual es ideal para profesionales, con su cocina independiente.
En planta Alta amplio playroom, que nos comunica a 4 dormitorios. Todos con placard, el principal amplio y cómodo en suite con vestidor, guardilla y baño con ducha.
Uno de los dormitorios posee un entrepiso ideal para escritorio, y balcones.
Todos los ambientes poseen aire acondicionado frio calor y el living comedor cuenta también con un hogar a gas.
La propiedad se encuentra en muy buen estado. Coordiná tu visita!
David Spanier – Mat. CUCICBA Nª1878 – Arie Wajnstok CMCPSI 6569
Las medidas, superficies consignadas en la presente descripción son aproximadas, a solo título orientativo y no son vinculantes. Las medidas y superficies reales surgen del Título respectivo.
Detalles
Actualizado en abril 24, 2026 a 12:10 am-
ID de propiedad 7977914
-
Precio U$D 260.000
-
Tamaño de propiedad 229 m²
-
Área terrestre 484 m²
-
Habitaciones 4
-
Habitaciones 5
-
Baños 4
-
Garages 3
-
Año Construido 1996
-
Tipo de propiedad Casa
-
Estado de la propiedad Venta
-
Código de referencia PHO7977914
-
Edad de la propiedad 30
Detalles adicionales
-
Plantas 2
Dirección
Abierto en Google Maps-
Localidad: San Isidro
-
Estado/Municipio: G.B.A. Zona Norte
-
Barrio: Villa Adelina
-
País: Argentina