Descripción
Departamento de 4 ambientes en el increíble edificio de ZAHA HADID en Buenos Aires.
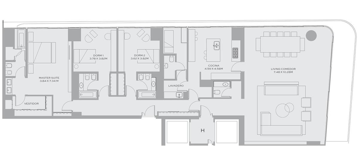
– Palier privado
– Living
– Comedor
– 3 suites
– Toilette
– Cocina
– Lavadero independiente
– Dependencia de servicio
Se vende con cochera!
—————————–
El edificio se encuentra en su etapa inicial, con entrega aproximada para el 2020.
Tendrá 33 pisos y unidades entre los 200 m2 a 460 m2.
El hall de entrada va a ser amplio y muy luminoso, con techos de triple altura.
El proyecto, como también el interiorismo de todos los espacios comunes, estará a cargo del famoso Estudio de Arquitectura internacional Zaha Hadid, siendo el primero en Latinoamérica con estas características.
—————————
AMENITIES
Dry Cleaner
– Car Wash
– Drop-off / Valet Parking
– Signature Lobby
– Signature Garden
– Outdoor & Indoor Pool
– Lounge / Lobby Bar
– Private Barbecue Area
– Wellness Area
– Gym
– Yoga & Pilates Studio
– Kids’ Room
– Teens’ Lounge
– 700 m2 of Outdoor/Indoor
– Rooftop Terrace
– Panoramic Lounge
PRIMMO PROPIEDADES
———-
David Spanier
CUCICBA N° 1878
David Spanier – Mat. CUCICBA Nª1878 – Arie Wajnstok CMCPSI 6569
Las medidas, superficies consignadas en la presente descripción son aproximadas, a solo título orientativo y no son vinculantes. Las medidas y superficies reales surgen del Título respectivo.
Detalles
Actualizado en mayo 15, 2026 a 12:08 am-
ID de propiedad 2006050
-
Precio U$D 3.311.000
-
Tamaño de propiedad 307.6 m²
-
Área terrestre 307.6 m²
-
Habitaciones 3
-
Habitaciones 4
-
Baños 3
-
Garages 2
-
Año Construido En construcción
-
Tipo de propiedad Departamento
-
Estado de la propiedad Venta
-
Código de referencia PAP2006050
-
Edad de la propiedad -1
Detalles adicionales
-
Medio baño 1
Dirección
Abierto en Google Maps-
Localidad: Capital Federal
-
Estado/Municipio: Argentina
-
Barrio: Palermo
-
País: Argentina
Características
- Aire Acondicionado individual
- Ascensor de servicio
- Balcón
- Balcón terraza
- Baño de servicio
- Baulera
- Cable
- Calefacción individual
- Cocina
- Comedor diario
- Dependencia
- Doble Acristalamiento
- Electricidad
- Galería
- Gimnasio
- Hall
- Hidromasaje
- Internet
- Laundry
- Lavadero
- Living comedor
- Microcine
- Palier privado
- Parrilla
- Pileta
- Pileta Cubierta
- Sala de juegos
- Sauna
- Seguridad
- Seguridad 24hs
- Solarium
- SUM
- Teléfono
- Toilette
- Vestidor
Información de contacto
Ver enlace de publicacionesAnuncios Similares
- Primmo Propiedades